Referenz
Dieses Objekt wurde bereits erfolgreich vermittelt.
Objektbeschreibung
Beschreibung
Die angebotene Wohnung befindet sich im zweiten Obergeschoss eines Mehrfamilienhauses mit 12 Parteien, welches 1978 erbaut wurde.
Die Eigentümergemeinschaft besteht aus mehreren Häusern an der Görlitzer Straße und der Feldstraße mit insgesamt 62 Wohnungen.
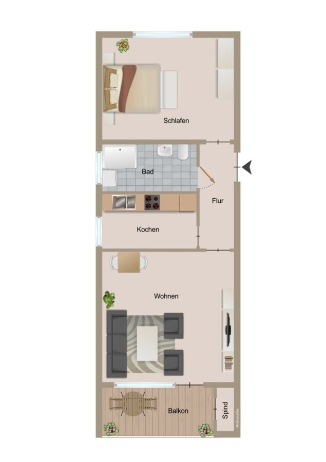
Neben einem Wohnzimmer verfügt die Wohnung über ein Schlafzimmer, eine Küche, einen Balkon und ein Badezimmer mit Dusche.
Die derzeitige Kaltmiete beträgt 460,- EUR im Monat.
Ausstattung
- Wohnzimmer
- Schlafzimmer
- Küche
- Duschbad
- Balkon / Loggia
- Kellerabstellraum
- Außenstellplatz
Sonstige Informationen
Alle im Exposé enthaltenen Angaben beruhen auf Aussagen der Eigentümer.
Die Käuferprovision in Höhe von 2,975% des beurkundeten Kaufpreises inkl. ges. MwSt. gilt als verdient bei Abschluss des notariellen Kaufvertrages.
Mit dem Verkäufer besteht ein Maklervertrag in gleicher Provisionshöhe.
Sie wollen Ihre Immobilie vermieten oder verkaufen? Gerne werden wir auch für Sie tätig.
Besuchen Sie uns auch gerne auf unserer Webseite: www.kiwi-immo.com
Lage
Leverkusen ist eine kreisfreie Stadt im südlichen Nordrhein-Westfalen. In Leverkusen mündet die Wupper in den Rhein. Leverkusen am Rhein ist eine Großstadt mit vielen Facetten. Rund 161.000 Menschen leben dort, in großstädtischen Gebieten ebenso wie in ländlicher Idylle. Beides, der dörfliche Charme und das pulsierende Stadtleben, finden sich oft nur wenige Kilometer, manchmal auch fast unvermittelt, nebeneinander wieder. Als industriell geprägte Stadt mit dem weltweit bekannten Unternehmen Bayer AG hat Leverkusen internationale Bekanntheit erreicht. Und doch ist sie viel mehr: Eine Stadt mit hohem Erholungswert, mit viel Grün vor allem an den Ausläufern des Bergischen Landes und mit romantischem Rheinufer im Norden. Zwischen den beiden Metropolen Köln und Düsseldorf an den Flüssen
Rhein, Wupper und Dhünn gelegen, hat Leverkusen im Laufe seiner relativ jungen Geschichte einen ganz eigenen Charakter entwickelt.
Görlitzer Straße 18, 51381 Leverkusen, Deutschland (Größere Karte ansehen)






